Trong lĩnh vực kinh doanh ẩm thực, một khu bếp công nghiệp được thiết kế bài bản không chỉ giúp nâng cao hiệu suất phục vụ mà còn tiết kiệm chi phí và đảm bảo vệ sinh an toàn thực phẩm. Tuy nhiên, để có được một không gian bếp tối ưu, việc tư vấn trước khi thiết kế đóng vai trò cực kỳ quan trọng.
Tại Bếp Toàn Cầu, chúng tôi cung cấp dịch vụ tư vấn thiết kế bếp công nghiệp chuyên nghiệp, đồng hành cùng khách hàng từ khâu khảo sát mặt bằng, xác định nhu cầu thực tế, ý tưởng bố trí mặt bằng – lựa chọn thiết bị đến dự toán chi phí giúp doanh nghiệp sở hữu một khu bếp hiện đại – an toàn – tiện nghi.
Với đội ngũ kỹ sư và chuyên viên nhiều kinh nghiệm và đã thực hiện hàng trăm dự án thiết kế lớn nhỏ, chúng tôi cam kết mang đến giải pháp khoa học – hiệu quả – tiết kiệm, phù hợp cho từng mô hình bếp nhà hàng, khách sạn, trường học, bệnh viện, bếp ăn tập thể hay khu chế biến thực phẩm…
👉 Sự khác biệt của Bếp Toàn Cầu nằm ở việc chúng tôi không chỉ thiết kế trên bản vẽ, mà còn tư vấn dựa trên thực tiễn vận hành, đảm bảo mỗi khu bếp đưa vào sử dụng đều hoạt động trơn tru, lâu dài và hiệu quả.

Vì sao cần tư vấn trước khi thiết kế bếp công nghiệp?
Một dự án bếp công nghiệp không chỉ đơn giản là lắp đặt vài thiết bị nhà bếp. Đó là cả một hệ thống liên hoàn đòi hỏi sự tính toán chính xác về công năng, diện tích, dòng di chuyển thực phẩm, thiết bị và nhận sự. Nếu bỏ qua khâu tư vấn thiết kế chuyên nghiệp, các chủ đầu tư rất dễ gặp phải những vấn đề sau:
🔸 Không gian bố trí thiếu khoa học gây chồng chéo, khó vận hành và tốn diện tích, kéo dài thời gian phục vụ.
🔸 Chi phí đầu tư không được tối ưu, dễ mua thừa, mua sai hoặc phát sinh nhiều hạng mục không cần thiết.
🔸 Không đảm bảo an toàn – vệ sinh thực phẩm sẽ làm ảnh hưởng trực tiếp đến uy tín và chất lượng dịch vụ.
🔸 Sử dụng thiết bị thừa công suất hoặc khó đáp ứng công suất phục vụ lớn sẽ gây gián đoạn, quá tải vào giờ cao điểm.
🔸 Khó khăn trong bảo trì, nâng cấp về sau nếu thiết kế ban đầu không được tính toán dài hạn.
Đó là lý do tư vấn thiết kế bếp công nghiệp trở thành bước nền tảng quan trọng giúp bạn tránh được những rủi ro trên và định hướng dự án vận hành trọn vẹn ngay từ đầu. Một bản tư vấn chi tiết sẽ giúp:
✅ Dự trù đúng chi phí đầu tư.
✅ Lựa chọn và bố trí thiết bị phù hợp với quy mô kinh doanh.
✅ Hình dung rõ không gian bếp thông qua bản vẽ thiết kế chi tiết, thấy được cách bố trí thiết bị, phân khu và dòng di chuyển.
✅ Đảm bảo quy trình bếp một chiều theo chuẩn an toàn thực phẩm.
✅ Mang lại hiệu quả vận hành lâu dài, tiết kiệm và bền vững.
Như vậy đầu tư vào dịch vụ tư vấn thiết kế bếp ngay từ đầu chính là đầu tư cho sự ổn định và hiệu quả vận hành về sau.

Giải pháp tư vấn thiết kế bếp công nghiệp tối ưu, phù hợp tại Bếp Toàn Cầu
Tư vấn thiết kế bếp công nghiệp không chỉ dừng lại ở bản vẽ bố trí thiết bị mà còn là quá trình nghiên cứu – phân tích – đề xuất giải pháp nhằm đảm bảo khu bếp vận hành trơn tru, tối ưu chi phí và tuân thủ các tiêu chuẩn khắt khe.
Bếp Toàn Cầu mang đến giải pháp tư vấn thiết kế bếp tối ưu phù hợp đối với từ mô hình bếp công nghiệp và ngân sách đầu tư của khách hàng. Quá trình tư vấn được chia thành nhiều hạng mục quan trọng, mỗi bước đều được thực hiện tỉ mỉ để đưa ra giải pháp toàn diện nhất cho khách hàng. Bao gồm:
Khảo sát thực tế
Khảo sát hiện trạng là bước đầu tiên và quan trọng nhất trong quy trình tư vấn thiết kế bếp công nghiệp. Giai đoạn giúp đội kỹ sư của chúng tôi nắm bắt chính xác không gian, diện tích, hệ thống điện – nước, thông gió, thoát khí cũng như các hạn chế thực tế của công trình.
Thông qua khảo sát, đội ngũ thiết kế của Bếp Toàn Cầu có thể:
✔️ Đánh giá được điểm mạnh và hạn chế của mặt bằng (rộng, hẹp, vuông, méo…) để đề xuất phương án bố trí tối ưu.
✔️ Kiểm tra hạ tầng kỹ thuật có đáp ứng được yêu cầu lắp đặt thiết bị bếp công nghiệp hay không.
✔️ Dự báo những khó khăn tiềm ẩn khi thi công và đưa ra giải pháp bố trí sơ bộ phù hợp thực tế, tối ưu diện tích và tránh sửa đổi tốn kém về sau.
✔️ Xác định luồng di chuyển nguyên liệu – thực phẩm – nhân sự để đảm bảo quy trình bếp một chiều.
✔️ Ghi nhận yêu cầu vận hành thực tế từ khách hàng, làm cơ sở cho giai đoạn thiết kế chi tiết về sau.
👉 Khảo sát mặt bằng là bước quan trọng đầu tiên, khảo sát càng kỹ, bản vẽ thiết kế và phương án bố trí sau này càng chính xác, khả thi và tiết kiệm chi phí. Đây là nền tảng giúp quá trình tư vấn – thi công diễn ra suôn sẻ và tiết kiệm chi phí cho khách hàng.
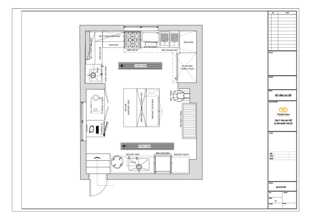
Bố trí mặt bằng hợp lý
Trong thiết kế bếp công nghiệp, bố trí mặt bằng đóng vai trò trung tâm, quyết định hiệu quả vận hành cũng như tuổi thọ thiết bị. Một sơ đồ bố trí khoa học sẽ giúp tối ưu diện tích, các khâu trong bếp liên kết chặt chẽ, giảm thiểu di chuyển thừa và tránh tình trạng “tắc nghẽn” trong giờ cao điểm.
Trong giai đoạn này, đội ngũ thiết kế Bếp Toàn Cầu sẽ lên phương án bố trí mặt bằng hợp lý nhằm đảm bảo các nguyên tắc:
Quy trình một chiều: Từ nhập nguyên liệu → sơ chế → chế biến → chia soạn → ra món → rửa & xử lý rác thải. Nguyên liệu sống và thực phẩm chín không giao cắt, đảm bảo vệ sinh an toàn thực phẩm.
Khu vực chức năng rõ ràng: Phân chia các khu vực chức năng rõ ràng từ khu sơ chế, chế biến, nấu nướng, soạn chia, rửa và kho bảo quản để tránh lẫn mùi, nhiễm chéo vi sinh.
Khoảng cách hợp lý: Thiết bị được sắp xếp dựa trên tần suất sử dụng, đảm bảo tiết kiệm diện tích, tạo lối đi thông thoáng, thuận tiện thao tác cho nhân sự vận hành ngay cả giờ cao điểm.
Tận dụng mặt bằng: Dù diện tích nhỏ hẹp, hình dạng vuông hay méo… Bếp Toàn Cầu luôn đưa ra phương án bố trí phù hợp, vừa khoa học vừa thẩm mỹ.
Tối ưu hạ tầng: Hệ thống điện, gas, nước và hút khói được thiết kế ăn khớp với vị trí thiết bị, giúp vận hành ổn định và hạn chế rủi ro sự cố.
✅ Một mặt bằng bếp được bố trí hợp lý không chỉ giúp tăng 20–30% hiệu suất phục vụ mà còn giảm chi phí vận hành dài hạn. Đây là yếu tố sống còn cho những mô hình có công suất lớn như nhà hàng, khách sạn, bếp ăn tập thể, trường học hay bệnh viện.

Tư vấn thiết bị bếp phù hợp
Lựa chọn thiết bị bếp công nghiệp phù hợp là bước quan trọng giúp cân đối giữa công suất – chi phí đầu tư – tuổi thọ – sự đồng bộ vận hành. Một hệ thống bếp được trang bị đúng thiết bị không chỉ đảm bảo phục vụ hiệu quả mà còn giảm đáng kể rủi ro hỏng hóc, chi phí bảo trì và điện năng tiêu thụ và rút ngắn vòng đời của bếp.
Đội ngũ kỹ thuật Bếp Toàn Cầu tư vấn lựa chọn và sử dụng thiết bị bếp công nghiệp dựa trên các tiêu chí sau:
🔹 Phù hợp nhu cầu, quy mô – mô hình và thực đơn kinh doanh: Nhà hàng, khách sạn, quán ăn nhanh, bếp ăn tập thể hay khu pha chế – mỗi mô hình đều có đặc thù riêng, đòi hỏi loại thiết bị bếp khác nhau.
🔹 Cân đối công suất: Thiết bị bếp cần đáp ứng được lượng suất ăn/giờ hoặc món phục vụ trung bình, tránh tình trạng thừa công suất gây lãng phí hoặc thiếu công suất dẫn đến quá tải.
🔹 Tính năng và chất lượng: Ưu tiên lựa chọn các thiết bị đa năng, tiết kiệm năng lượng, có khả năng vận hành liên tục, ưu tiên chất liệu inox đảm bảo độ bền, an toàn, dễ vệ sinh và phù hợp với môi trường bếp công nghiệp.
🔹 Thương hiệu và nguồn gốc: Chỉ đề xuất các dòng thiết bị bếp có nguồn gốc thương hiệu, nhà sản xuất rõ ràng, chất lượng, uy tín, các chế độ bảo hành chính hãng, linh kiện thay thế sẵn có của các thiết bị bếp.
🔹 Đồng bộ & tối ưu vận hành: Các thiết bị bếp công nghiệp được lựa chọn đề xuất phải khớp với sơ đồ mặt bằng và hạ tầng kỹ thuật (điện, gas, nước, hút khói).
🔹 Chi phí đầu tư và vận hành: Đưa ra nhiều phương án tương ứng với ngân sách, kèm phân tích chi phí đầu tư – bảo trì – tiêu hao năng lượng để khách hàng có góc nhìn tổng thể.
👉 Như vậy với sự tư vấn này, khách hàng sở hữu hệ thống thiết bị bếp phù hợp với nhu cầu, công suất vận hành và ngân sách đầu tư, đồng thời tạo nền tảng vững chắc cho mô hình kinh doanh phát triển bền lâu.

Dự toán & ngân sách đầu tư
Một bản dự toán chính xác là nền tảng giúp chủ đầu tư kiểm soát chi phí, tránh phát sinh ngoài hợp đồng và đảm bảo tiến độ dự án. Đây là giai đoạn giúp khách hàng biết rõ cần đầu tư bao nhiêu, chi phí được phân bổ cho từng hạng mục nào và đâu là phương án tối ưu nhất.
Tại Bếp Toàn Cầu, dự toán không chỉ dừng lại ở việc liệt kê thiết bị, mà còn bao gồm toàn bộ chi phí liên quan bao gồm:
🔹 Chi phí thiết bị bếp: Phân tích báo giá chi tiết từng hạng mục thiết bị (bếp nấu, lò nướng – hấp, tủ lạnh, máy rửa bát, máy làm đá, hệ thống hút khói, bàn inox…).
🔹 Chi phí hạ tầng kỹ thuật: Điện, nước, gas, hệ thống hút khói & xử lý mùi, đảm bảo đồng bộ với thiết bị.
🔹 Chi phí thi công lắp đặt: Bao gồm nhân công, vật tư, vận chuyển và lắp đặt tại công trình.
🔹 Chi phí bảo trì & bảo hành: Cam kết minh bạch, không phát sinh chi phí ẩn trong quá trình vận hành.
🔹 Ngân sách linh hoạt: Bếp Toàn cầu đưa ra các phương án tư vấn giải pháp thiết kế phù hợp với ngân sách dự kiến của khách hàng. Báo giá từ 2 – 3 bảng báo giá (tiết kiệm – tiêu chuẩn – cao cấp) giúp chủ đầu tư dễ dàng cân đối với ngân sách thực tế.
Với quy trình làm việc chuyên nghiệp, đưa ra báo giá dự toán chi phí minh bạch rõ ràng giúp khách hàng không chỉ kiểm soát được ngân sách đầu tư mà còn tránh phát sinh các chi phí không đáng có hoặc chi phí ngoài dự kiến, đồng thời cân đối được hiệu quả đầu tư và lợi ích vận hành lâu dài.
👉👉👉Nhu cầu phục vụ hàng nghìn suất ăn mỗi ngày, giải pháp thiết kế bếp ăn tập thể, căn tin – nhà máy sẽ giúp bạn vận hành hiệu quả và tiết kiệm chi phí. Xem ngay!!!
Đảm bảo tiêu chuẩn an toàn & vệ sinh thực phẩm
Trong tư vấn thiết kế bếp công nghiệp, việc tuân thủ các tiêu chuẩn an toàn lao động và vệ sinh thực phẩm là yếu tố hàng đầu mang tính bắt buộc, không chỉ để đảm bảo sức khỏe thực khách mà còn đáp ứng yêu cầu pháp lý khi vận hành.
Tại Bếp Toàn Cầu, chúng tôi đảm bảo thiết kế và lựa chọn thiết bị theo đúng quy chuẩn với các tiêu chí sau:
🔹 Thiết kế quy trình bếp một chiều: Thực phẩm sống và chín được xử lý ở khu riêng biệt, tránh nhiễm chéo vi sinh.
🔹 Tư vấn sử dụng vật liệu thiết bị đạt chuẩn: Toàn bộ bàn, kệ, chậu rửa, thiết bị chế biến được làm từ inox chống gỉ, dễ vệ sinh, đạt chuẩn an toàn thực phẩm.
🔹 Hệ thống hút khói & xử lý mùi: Lắp đặt khoa học nhằm giảm thiểu nhiệt độ, khói dầu và khí độc, giúp môi trường bếp luôn thông thoáng, sạch sẽ, hạn chế vi khuẩn và nấm mốc bảo vệ sức khỏe nhân viên bếp.
🔹 Đảm bảo an toàn điện – gas – nước: Thiết kế hệ thống đường dẫn và thiết bị cảnh báo rò rỉ gas, chống cháy nổ, ngắt điện tự động.
🔹 Tuân thủ quy định pháp luật: Đáp ứng tiêu chuẩn của Bộ Y tế, Bộ Công thương và các quy chuẩn PCCC liên quan.
👉 Với hệ thống bếp được tư vấn thiết kế đạt chuẩn, chủ đầu tư không chỉ yên tâm về vận hành an toàn mà còn tạo được uy tín, niềm tin với khách hàng và tránh rủi ro pháp lý.

Tiêu chuẩn an toàn vệ sinh thực phẩm là yêu cầu bắt buộc trong mọi mô hình bếp công nghiệp, đặc biệt với những khu bếp phục vụ số lượng suất ăn lớn mỗi ngày. Nếu bạn đang cần một giải pháp vừa đảm bảo an toàn tuyệt đối, vừa tối ưu quy trình nấu nướng, hãy tham khảo dịch vụ thiết kế bếp trường học, bệnh viện của Bếp Toàn Cầu.
Tư vấn bếp công nghiệp cho từng loại hình kinh doanh
Mỗi mô hình kinh doanh ẩm thực đều có đặc thù riêng về quy trình phục vụ, thực đơn, số lượng suất ăn và yêu cầu vận hành. Vì vậy, giải pháp tư vấn thiết kế bếp công nghiệp của Bếp Toàn Cầu cũng phải được “may đo” để đảm bảo tối ưu công năng – tiết kiệm chi phí – tuân thủ tiêu chuẩn an toàn vệ sinh thực phẩm.
Tại Bếp Toàn Cầu, chúng tôi đã triển khai hàng trăm dự án thiết kế bếp cho nhiều mô hình khác nhau, trong đó phổ biến nhất là:
➡️ Tư vấn thiết kế bếp nhà hàng, khách sạn: Bếp nhà hàng – khách sạn đòi hỏi tính chuyên nghiệp, nhanh chóng và đa dạng thực đơn. Do vậy khi tư vấn bếp công nghiệp nhà hàng cần phân khu chế biến rõ ràng, tối ưu hóa không gian, bố trí thiết bị linh hoạt để phục vụ nhanh và dễ thay đổi thực đơn.
➡️ Bếp trường học, bệnh viện: Đặc thù của mô hình này là phục vụ khối lượng suất ăn rất lớn mỗi ngày, đòi hỏi tiêu chuẩn an toàn vệ sinh thực phẩm nghiêm ngặt. Khu bếp cần được thiết kế theo quy trình một chiều, trang bị thiết bị dễ vệ sinh – khử trùng, nhằm đảm bảo dinh dưỡng và an toàn tối đa cho học sinh, bệnh nhân.
➡️ Bếp ăn tập thể tại nhà máy, công ty: Đối với mô hình bếp ăn tập thể cần đáp ứng công suất lớn với chi phí hợp lý. Do vậy giải pháp tư vấn bếp công nghiệp tập trung vào dây chuyền nấu nướng – chia suất – rửa dụng cụ một cách khoa học, giúp giảm thời gian phục vụ nhằm đảm bảo và đáp ứng suất ăn lớn mỗi ngày.
➡️ Bếp bánh, xưởng bánh, khu pha chế – quán bar, cà phê: Khu bếp bánh và pha chế thường yêu cầu sự tinh gọn, thẩm mỹ và tính sáng tạo cao. Bếp Toàn Cầu mang đến giải pháp tư vấn thiết kế tối ưu không gian diện tích, đảm bảo tính thẩm mỹ, bố trí khoa học để thao tác nhanh, đồng thời nâng cao trải nghiệm phục vụ cho khách hàng
➡️ Food court, trung tâm thương mại, khu vui chơi: Đối với mô hình ẩm thực này đòi hỏi thiết kế setup thiết bị bếp linh hoạt, phục vụ đa dạng món ăn cùng lúc, công suất lớn cùng với hệ thống hút khói – thông gió tối ưu để giữ không gian thoáng và sạch đảm bảo phục vụ đồng thời nhiều gian hàng.
Tùy theo từng loại hình bếp mà đội ngũ kỹ sư của chúng tôi sẽ tư vấn và xây dựng bản vẽ thiết kế chi tiết, kèm danh mục thiết bị phù hợp, giúp khách hàng dễ dàng triển khai dự án và vận hành bếp hiệu quả.

>>> Bạn có thể xem chi tiết dịch vụ thiết kế bếp nhà hàng, khách sạn để có giải pháp phù hợp với mô hình kinh doanh ẩm thực chuyên nghiệp.
Quy trình tư vấn thiết kế bếp công nghiệp tại Toàn Cầu
Để đảm bảo mỗi dự án bếp công nghiệp đều được triển khai bài bản – chính xác – hiệu quả, Bếp Toàn Cầu áp dụng quy trình tư vấn thiết kế khoa học, gồm các bước sau:
1. Tiếp nhận thông tin & nhu cầu khách hàng
Khách hàng cung cấp thông tin cơ bản về mô hình kinh doanh, quy mô phục vụ, suất ăn/ngày và ngân sách dự kiến. Đây là cơ sở ban đầu để đội ngũ kỹ sư Bếp Toàn Cầu định hướng giải pháp tư vấn thiết kế bếp phù hợp.
2. Khảo sát hiện trạng công trình
Kỹ sư trực tiếp đến công trình thực hiện khảo sát mặt bằng kỹ lưỡng, nắm bắt hiện trạng mặt bằng, đo đạc diện tích chính xác, kiểm tra hệ thống hạ tầng (điện – nước – gas – thoát khí) và đánh giá các yếu tố có thể ảnh hưởng đến thiết kế từ đó tư vấn giải pháp thiết kế phù hợp nhất.
3. Lên ý tưởng, thiết kế bản vẽ chi tiết
Dựa trên hiện trạng khảo sát và nhu cầu của khách hàng, đội ngũ kỹ thuật Bếp toàn Cầu lên ý tưởng, bản vẽ thiết kế chi tiết thể hiện đầy đủ các hạng mục cần thiết như: sơ đồ bố trí mặt bằng, sơ đồ hệ thống điện, nước, gas, bản vẽ hệ thống thông gió hút mùi, layout bố trí thiết bị, phân chia khu chức năng (sơ chế, nấu, chia soạn, rửa…) bản vẽ thiết bị inox bếp công nghiệp gia công sản xuất theo yêu cầu. Phối cảnh 2D – 3D để khách hàng hình dung khu bếp trong tương lai, đảm bảo quy trình một chiều và tuân thủ tiêu chuẩn an toàn vệ sinh thực phẩm.
4. Tư vấn & lựa chọn thiết bị bếp
Đưa ra danh mục thiết bị phù hợp với quy mô, công suất và thực đơn món ăn và đặc thù vận hành của mô hình. Thiết bị được lựa chọn đồng bộ có nguồn gốc – xuất xứ rõ ràng, ưu tiên chất liệu inox bền bỉ, tiết kiệm năng lượng và dễ bảo trì.
5. Lập dự toán chi phí chi tiết
Dự toán minh bạch, bao gồm chi phí thiết bị, thi công lắp đặt, hạ tầng kỹ thuật và phương án bảo trì, hậu mãi. Khách hàng được cung cấp nhiều phương án báo giá từ tiết kiệm – tiêu chuẩn – cao cấp để lựa chọn phù hợp với ngân sách đầu tư.
6. Trình bày phương án & chỉnh sửa theo yêu cầu
Phương án thiết kế được trình bày rõ ràng bằng hồ sơ bản vẽ và báo giá từng hạng mục chi tiết. Khách hàng có quyền yêu cầu chỉnh sửa, thay đổi để đảm bảo giải pháp cuối cùng sát với nhu cầu thực tế nhất.
7. Hoàn thiện hồ sơ thiết kế & bàn giao
Sau khi thống nhất, hồ sơ thiết kế đầy đủ bao gồm bản vẽ mặt bằng, bản vẽ kỹ thuật và bảng dự toán chi tiết sẽ được bàn giao cho khách hàng. Sau đó bước sang giai đoạn sản xuất, cung ứng và thi công lắp đặt thiết bị bếp cho các mô hình kinh doanh.

Lợi ích khách hàng nhận được khi tư vấn thiết kế bếp công nghiệp
Việc tư vấn thiết kế bếp công nghiệp không chỉ giúp doanh nghiệp sở hữu một khu bếp đẹp mắt mà còn mang lại nhiều giá trị lâu dài. Khách hàng lựa chọn dịch vụ tư vấn tại Bếp Toàn Cầu sẽ nhận được những lợi ích vượt trội:
✨ Giải pháp tổng thể – vận hành trơn tru: Khách hàng nhận được một bản thiết kế hoàn chỉnh từ khảo sát, bố trí mặt bằng, danh mục thiết bị đến giải pháp kỹ thuật. Nhờ đó, khu bếp hoạt động mạch lạc, hạn chế tối đa sự cố phát sinh trong vận hành.
✨ Tối ưu chi phí đầu tư & vận hành: Từng hạng mục thiết bị, từng mét vuông diện tích đều được tính toán kỹ lưỡng để giảm lãng phí và hạn chế các chi phí phát sinh. Giải pháp thiết kế giúp tiết kiệm từ 10–20% chi phí đầu tư ban đầu và duy trì chi phí vận hành ổn định lâu dài.
✨ Thiết bị chuẩn – công suất bền bỉ: Được tư vấn lựa chọn thiết bị phù hợp với quy mô, công suất, đặc thù vận hành và thực đơn phục vụ. Tất cả đều là thiết bị chính hãng, inox đạt chuẩn VSATTP, đảm bảo độ bền và hiệu quả.
✨ Đáp ứng tiêu chuẩn VSATTP & PCCC: Hệ thống bếp được thiết kế đúng chuẩn: quy trình một chiều, khu chế biến – lưu trữ – phục vụ tách biệt. Đảm bảo quy chuẩn vệ sinh an toàn thực phẩm, phòng cháy chữa cháy, giúp khách hàng dễ dàng vượt qua các đợt thẩm định, kiểm tra của cơ quan chức năng.
✨ Khả năng mở rộng & nâng cấp dễ dàng: Thiết kế ban đầu được tính toán với tầm nhìn dài hạn, cho phép mở rộng hoặc thay đổi mô hình kinh doanh mà không cần cải tạo toàn bộ → tiết kiệm chi phí nâng cấp trong tương lai.
✨ Giải pháp “may đo” cho từng mô hình: Mỗi dự án được xây dựng dựa trên đặc thù vận hành, thực đơn và công suất riêng của khách hàng, thay vì áp dụng mẫu chung.
✨ Đồng hành lâu dài: Đội ngũ kỹ sư của Bếp Toàn Cầu luôn hỗ trợ bảo trì, nâng cấp và cải thiện khi khách hàng có nhu cầu mở rộng hoặc thay đổi mô hình kinh doanh
✨ Tăng uy tín & niềm tin khách hàng: Một bếp đạt chuẩn vận hành ổn định, sạch sẽ, chuyên nghiệp sẽ nâng cao hình ảnh thương hiệu, tạo sự tin tưởng với khách hàng và cơ quan quản lý.
Nhờ những lợi ích trên, việc tư vấn thiết kế bếp công nghiệp không chỉ là bước đầu tư thông minh mà còn là nền tảng giúp doanh nghiệp vận hành hiệu quả, bền vững và chuyên nghiệp.

👉👉👉 Đối với mô hình sáng tạo như làm bánh, pha chế, bar hoặc café, bạn có thể tham khảo dịch vụ thiết kế bếp bánh & khu pha chế để tối ưu không gian và trải nghiệm khách hàng.
Những lưu ý khi chọn đơn vị tư vấn bếp công nghiệp
Khi tìm kiếm một đơn vị tư vấn bếp công nghiệp, bạn nên cân nhắc các yếu tố sau để đảm bảo lựa chọn đúng đơn vị thực hiện dịch vụ:
- Kinh nghiệm & dự án thực tế: Ưu tiên những đơn vị đã từng triển khai nhiều mô hình bếp nhà hàng, khách sạn, trường học, bệnh viện.
- Đội ngũ chuyên môn: Kiến trúc sư, kỹ sư am hiểu quy trình vận hành F&B, tiêu chuẩn vệ sinh và an toàn PCCC.
- Giải pháp tối ưu chi phí: Đưa ra nhiều phương án thiết kế, tư vấn thiết bị phù hợp với quy mô và ngân sách.
- Dịch vụ hậu mãi: Có cam kết bảo hành, bảo trì và đồng hành trong suốt quá trình vận hành.
👉 Lựa chọn đúng đơn vị tư vấn bếp công nghiệp sẽ giúp bạn tiết kiệm chi phí, đảm bảo công năng và tránh những sai lầm tốn kém.
Liên hệ tư vấn thiết kế bếp công nghiệp tại Bếp Toàn Cầu
Như vậy việc xây dựng một bếp công nghiệp hiệu quả và an toàn không chỉ là lắp đặt thiết bị, mà còn cần có bản vẽ thiết kế, lựa chọn bố trí thiết bị và dự toán chi phí phù hợp.
Tại Bếp Toàn Cầu, chúng tôi mang đến giải pháp tư vấn thiết kế bếp công nghiệp “may đo” phù hợp cho từng mô hình kinh doanh. Đồng hành cùng với khách hàng từ khâu khảo sát, tư vấn, thiết kế bản vẽ cho đến triển khai thực tế. Với đội ngũ kỹ sư giàu kinh nghiệm, có mặt tại 3 chi nhánh tại Hà Nội – Đà Nẵng – Hồ Chí Minh và hàng trăm dự án thành công, chúng tôi cam kết mang đến dịch vụ tư vấn thiết kế bếp công nghiệp tối ưu – tiết kiệm – bền vững.
Nếu bạn đang chuẩn bị triển khai dự án bếp công nghiệp cho nhà hàng, khách sạn, bếp ăn tập thể hay khu công nghiệp, hãy liên hệ với chúng tôi để được tư vấn chi tiết. Bếp Toàn Cầu luôn sẵn sàng đồng hành cùng bạn trong việc xây dựng một khu bếp hiện đại, an toàn và hiệu quả lâu dài.









